Ce pont roulant bipoutre avec treuil est un équipement de manutention et de levage à forte capacité idéal dans plusieurs secteurs d'activité tels que :
- Les ateliers
- La métallurgie
- Les entrepôts
- Les ateliers d'assemblage…
Il aide à soulever des charges allant de 5 tonnes à l'illimité selon le mode de fonctionnement.
Vous pouvez équiper le pont avec des modules intelligents pour un fonctionnement automatique sans pilote et connecter le système de gestion d'usine au système de contrôle afin de générer une production automatisée.
Le pont roulant est robuste et possède de multiples configurations selon vos besoins.
-
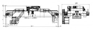
Caractéristiques Techniques :
- Modèle : QDxx
- Marque : Weihua
- Lieu d’origine : Chine
- Certificats : ISO 9001, ISO 14001, OHSAS, 18001 GB/T
- Capacité de levage : 5t à 320t (standard)
- Sur mesure
- Sans limite de capacité
- Portée : 10,5 m à 31,5 m ou autre
- Hauteur de levage : 20m ou autre
- Composants principaux : PLC, Moteur, Palier, Boîte de vitesses
- Capacité de levage manuelle en t : 400
- Capacité de levage automatique en t : 50
- Portée en m : 34
- Hauteur de levage en m : 40
- Niveau de travail : A5
- Vitesse mannuelle en m/min : 0.2~2
- Vitesse automatique en m/min : 0.4~4
- Vitesse déplacement du grappin en m/min : 2.5~25
- Vitesse déplacement du pont en m/min : 3~30
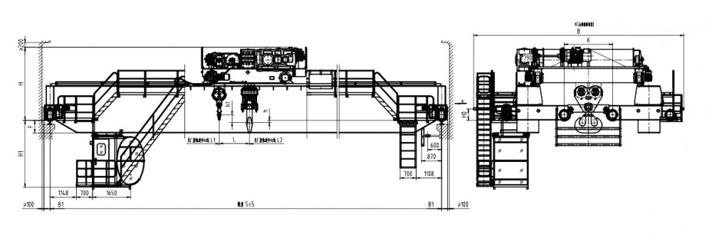
- Dimension limite en mm pour :
- L1 : 1400
- L2 : 3200
- L : 2800
- h : 600
- h1 : 1028
- Dimension principal en mm pour :
- H : 4893
- H1 : 3285
- B : 13970
- B1 : 480
- Charge des roues maximum en KN : 627
- Courant total en Kw : 279
- Rail du pont recommandé : QU120
- Source de courant : Selon vos besoins
Applications :
- Le pont roulant bipoutre standard européen adopte un concept de conception léger, optimise la structure du pont pour réduire le poids du produit, utilise des composants hautes performances pour réduire la taille globale, utilise un mécanisme de transmission intégré pour réduire les liaisons de transmission, utilise un traitement global pour simplifier le processus de production et utilise un contrôle intelligent pour faciliter son utilisation.
- Il adopte une conception modulaire et transforme des pièces ayant des fonctions similaires en modules standard interchangeables avec de multiples utilisations et interconnexions. Grâce à différentes combinaisons de modules, une série de produits aux spécifications multiples et formées.
- En planifiant rationnellement les principaux paramètres, les formes structurelles et les caractéristiques fonctionnelles de cette série du pont, il présente une bonne évolutivité, de sorte qu'une variété de séries de produits de levage peut être produites pour répondre aux différents besoins technologiques des utilisateurs.
Sécurité
- La surface du tambour d’enroulement monocouche est coupée avec une rainure en spirale avec une section en forme d’arc pour augmenter la zone de contact entre le câble métallique et le corps du tambour, et pour fixer la position d’enroulement du câble métallique sur le tambour afin d’éviter l’influence des câbles adjacents frottant les uns contre les autres.
- La surface du corps du tambour d’enroulement multicouche est généralement une surface lisse sans rainures en spirale, et il y a des brides aux deux extrémités du corps du tambour pour empêcher le câble métallique de glisser. L’inconvénient est que les câbles métalliques sont étroitement disposés et que les couches sont empilées et frottées les unes contre les autres, ce qui a un impact important sur la durée de vie du câble métallique. Parmi les dimensions structurelles de la bobine, la dimension clé qui affecte la durée de vie du câble métallique est le diamètre calculé du tambour.