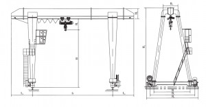
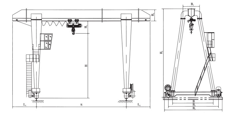
Ce portique avec poutre en caisson est un appareil de levage qui vous permet de charger, décharger ou soulever des matériaux lourds.
Il est constitué d'un palan électrique et a deux types de fonctionnement : fonctionnement au sol et en cabine de conduite.
Le portique est robuste avec ses pieds en acier qui conviennent à toutes les conditions climatiques.
-
Caractéristiques Techniques :
- Modèle : MH
- Marque : Weihua
- Lieu d’origine : Chine
- Certificats : ISO 9001, ISO 14001, OHSAS, 18001 GB/T
- Capacité de levage avec palan électrique : 50 t
- Capacité de levage avec chariot : selon vos besoins
- Découpe CNC pour plaque d'âme de poutre avec une précision élevée.
- Grenaillage Sa2.5 pour une poutre complète après soudage avec relâchement des contraintes.
- Revêtement et peinture époxy riche en zinc d'épaisseur 2x2 à 140μm.
- Les boulons de classe 10.9 relient la poutre et les pieds.
- Motoréducteur trois en un avec moteur à engrenage vertical.
- Moteurs avec classe de protection élevée IP55, classe F, 40 % ED.
- Chariot d'extrémité équipée de roulements anti-friction, de tampons en caoutchouc cellulaire et de protecteurs de déraillement.
- Structure pieds : en acier de type A en acier au carbone Q235B/Q345B
- Technologie de formage unique sans soudure
|
Capacité de levage |
t |
10 |
|
Portée |
m |
12 |
16 |
20 |
24 |
30 |
|
Hauteur de levage |
m |
6/9 |
9 |
Mécanisme de
déplacement |
Vitesse de déplacement |
contrôle au sol de la poignée |
m/min |
20 |
|
Cabine |
3040 |
|
Diamètre de la roue |
mm |
Ф400 |
Ф500 |
|
Palan électrique |
Vitesse de levage |
m/min |
7 0.7/7 |
|
Vitesse de déplacement |
m/min |
20 |
|
Niveau de travail |
A5 |
|
galet en acier Recommandé |
P38 |
P43 |
|
Source d'énergie |
Selon vos besoin |
|
Poids de portique |
contrôle au sol de la poignée |
t |
14.8/16.1 |
16.7/18.7 |
19.6/21.6 |
24.4/26.6 |
30.1 |
|
Cabine |
t |
14.8/17.3 |
17.5/19.9 |
20.4/22.9 |
25.2/27.9 |
31.4 |
|
Charge maximale des roues |
|
kn |
97/102 |
105/110 |
113/118 |
121/126 |
149 |
|
|
L1 |
mm |
3000 |
4000 |
5000 |
6000 |
7500 |
|
L2 |
|
H1 |
1350 |
|
H2 |
1000 |
1100 |
1200 |
1300 |
1600 |
|
H3 |
8350/11350 |
8450/11450 |
8550/11550 |
8650/11650 |
12250 |
|
b |
4500/5500 |
5500/6500 |
|
B1 |
5500/6500 |
6500/7500 |
|
B2 |
6000/7100 |
7100/8100 |
|
B3 |
1600 |
Sécurité et protection :
- Interrupteur de fin de course, dispositif de protection contre les surcharges, dispositif de limitation de hauteur, protection de baisse de tension, dispositif de protection de séquence de phase, arrêt d'urgence, toiture de pluie pour palan électrique extérieur, unités d'entraînement, câble électrique, indicateur d'avertissement alarmant, etc.
- Pièces de Protection de Sécurité Mécanique :
- La plate-forme est recouverte de plaques d'acier à motifs antidérapants et le bas de la plate-forme est muni d'une plaque de protection ; la hauteur du garde-corps est de 1050 mm et il y a deux barres transversales avec un intervalle de 350 mm.
- Il y a des tampons aux deux extrémités de la poutre principale pour assurer le fonctionnement en sécurité du chariot sur la poutre principale.
- Équipé d'une balayeuse de rail, qui peut éliminer les obstacles sur la voie et assurer la sécurité de fonctionnement.
- Il y a aussi une échelle droite lors des opérations au sol. Lorsque la hauteur est supérieure à 5m, un anneau de sécurité est installé à partir de 2m.
- Système de Protection Electrique :
- Protection de court-circuit.
- Protection Contre les Pertes de Tension.
- Interrupteur d'Arrêt d’Urgence.
- Limiteur de surcharge.
- Limite de Déplacement.
- Position Zéro et Protection de Interverrouillage (uniquement pour le fonctionnement dans la cabine).
- Protection Contre les Pertes de Phase, l’inversion de phase, les Surtensions et Les Sous-Tensions.
- Fil Mise à Terre