Ce pont roulant bipoutre avec palan électrique est destinée aux :
- Ateliers
- Industries métallurgiques
- Entrepôts
- Ateliers d'assemblage, etc.
Il permet de déplacer des matériaux lourds allant jusqu'à 80 tonnes facilitant ainsi vos travaux.
Il émet un bruit faible qui est inférieur à 60 db.
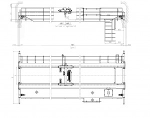
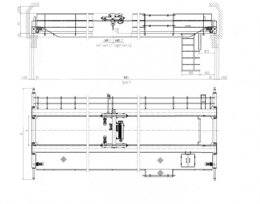
Le pont roulant est constitué de deux poutres principales soudées de type caisson, légère et très performante, d'un chariot à palan électrique, d'un cadre de pont à structure en acier, d'une unité d'entraînement à fréquence variable trois en un et d'un système électrique.
Le pont est multifonctionnel avec une installation et une utilisation facile.
- Structure compacte
- Poids léger
- Hauteur de levage élevée
- Haute résistance
- Forte rigidité
- Performances stables
- Mécanisme sûr, stable et fiable
-
Caractéristiques Techniques :
- Modèle : NLH
- Marque : Weihua
- Lieu d’origine : Chine
- Certificats : ISO 9001, ISO 14001, OHSAS, 18001 GB/T
- Durée de vie nominale : plus de 30 ans
- Capacité de levage : 5 t à 32 t
- Capacité max : 80t pour pont bipoutre avec palan
- S(m) : 10.5, 13.5, 16.5, 19.5, 22.5, 25.5, 28.5, 31.5
- Dimensions pour 5t :
- H1(mm) : 1432, 1482 1582 1634
- H2(mm) : 0, 100, 200,250, 300, 400
- H3(mm) : 270, 272
- L1(mm) : 850
- L2(mm) : 1300
- K(mm) : 1600
- B(mm) : 4874, 5274
- B1(mm) : 135
- Dimensions pour 10t :
- H1(mm) : 1432, 1434
- H2(mm) : 0, 150, 200,350, 402
- H3(mm) : 195, 245, 345, 397
- L1(mm) : 850
- L2(mm) : 1300
- K(mm) : 1600
- B(mm) : 4874, 5274
- B1(mm) : 150
- Dimensions pour 16t :
- H1(mm) : 1484, 1584, 1534, 1634
- H2(mm) : 100, 150, 300, 352, 502, 452, 552
- H3(mm) : 88, 138, 238
- L1(mm) : 900
- L2(mm) : 1300
- K(mm) : 2000
- B(mm) : 5252, 5302, 5352
- B1(mm) : 150
- Dimensions pour 20t :
- H1(mm) : 1451, 1551, 1553, 1603, 1703
- H2(mm) : 200, 302, 402, 554
- H3(mm) : 126, 226, 228, 278, 378
- L1(mm) : 1000
- L2(mm) : 1300
- K(mm) : 2000
- B(mm) : 5202, 5252, 5302, 5352
- B1(mm) : 185
- Dimensions pour 32t :
- H1(mm) : 1638, 1640, 1740, 1792
- H2(mm) : 152, 252, 254, 404, 454, 556, 656
- H3(mm) : -147, -145, - 45, 7
- L1(mm) : 1000
- L2(mm) : 1400
- K(mm) : 2400
- B(mm) : 5774, 5874
- Poids léger
- Normes : FEM/DIN
- Conception raisonnable
- Structure optimisée
Poutre principal et Poutre d'extrémité (en option) :
- La poutre principale est soudée et formée par des plaques d'acier. Le matériau principal de la structure en acier n'est pas inférieur à Q235B. La fabrication, le soudage et le contrôle de la structure en acier sont effectués conformément aux normes correspondantes. Les soudures principales doivent faire l'objet d'essais non destructifs et faire l'objet d'un rapport de détection des défauts.
- La poutre d'extrémité adopte une structure de tube carré rectangulaire roulé ou un formage soudé, et le matériau n'est pas inférieur à Q235B. La poutre d'extrémité formée est positionnée et traitée en une seule fois dans le centre d'usinage CNC pour garantir la précision dimensionnelle et les tolérances d'ajustement.
- La poutre principale et la poutre d'extrémité sont reliées par des boulons à haute résistance, qui ont une bonne sécurité et une résistance élevée, assurant la précision et le bon fonctionnement de l'ensemble de la machine.
Mécanisme de déplacement du pont et du chariot (en option):
- La précision de fabrication des engrenages du système de transmission est supérieure à 6 niveaux et le réducteur adopte une conception sans entretien de 10 ans.
- Le mécanisme de déplacement du pont adopte le moteur d'entraînement trois en un de SEW, ABM ou d'une autre marque de renommée internationale, et est équipé du système de régulation de la vitesse de conversion de fréquence de Schneider.
- Le moteur de déplacement du pont adopte un moteur à fréquence variable à cage d'écureuil, qui est entièrement scellé et refroidi par air. La coque du moteur est estampée et formée par un tube en aluminium. La durée de connexion n'est pas inférieure à 40%. Le degré de protection du moteur n'est pas inférieur à IP55.
- SEW, ABM et d'autres marques bien connues peuvent être sélectionnées pour le moteur trois en un du dispositif de déplacement du chariot. Le degré de protection du moteur n'est pas inférieur à IP55, le degré d'isolation est F et est doté d'une protection contre la surchauffe et d'une fonction d'alarme.
Sécurité
- Les deux extrémités de la voie de chariot sont équipées de protège-roue et de supports d'arrêt d’amortisseur.
- Le pont est équipé d’une passerelle d’entretien, dont largeur pas moins de 800 mm, La surface au pieds adopte une plaque d'acier à motif, l'épaisseur n'est pas inférieure à 4,5 mm. Il y a une balustrade à côté du passage, et la hauteur de la balustrade est de 1050 mm, Il y a deux barres transversales en dessous et la distance entre les barres est de 350 mm. Le fond est conçu avec une plinthe d'une hauteur d'au moins 70 mm, N'importe quel endroit sur la balustrade doit pouvoir supporter une charge de 1KN (100kgf) dans n'importe quelle direction sans déformation.
- Le niveau de protection du moteur de du palan n'est pas inférieur à IP54 et dispose de fonctions de protection contre la surchauffe et d'alarme,
- Le palan électrique adopte un frein à disque électrique sans entretien, qui est en état de freinage lorsque l'alimentation est coupée pour assurer la sécurité.
- Le matériau des plaquettes de frein est respectueux de l'environnement et ne contient pas d'amiante, le facteur de sécurité de freinage minimum est de 1,8 et le freinage sécurité n'est pas inférieur à 1 million de fois.
- Le palan électrique est équipé d'un limiteur de surcharge.
- Avant le démarrage du palan électrique, le contrôleur effectuera une auto-vérification, y compris le niveau de tension d'alimentation, la situation de phase, a validité de chaque dispositif de protection de sécurité et la position zéro du bouton.
- Le palan électrique est équipé d'un interrupteur de fin de course de levage à spirale à quatre contacts.
- Le crochet a un linguet de sécurité qui empêche le décrochement.
- Tous les équipements électriques ont les mesures de protection nécessaires pour éviter les chocs électriques accidentels et les accidents de collision. Il y a un interrupteur d'arrêt d'urgence à la forme de tête de champignon dédié à l'arrêt d'urgence sur le système d'exploitation. Les composants électriques choisissent ABB, Le niveau de protection du boîtier de commande électrique n'est pas inférieur à IP54. Garantir pleinement la fiabilité, la stabilité et la durabilité du système.
- Le mécanisme de fonctionnement adopte un interrupteur de fin de course à levier croisé rotatif à 360 degrés.
- Fin de course du pont roulant - Utilise fin de course rotatif à fourche croisée.
- Limiteur de surcharge.
- Protection Electrique Générale : Protection de séquence de phase, surintensité, surtension, sous-tension, court-circuit, surchauffe, mise à la terre, protection contre les fuites, etc.
- Protection de distribution d’énergie.
- Protection de distribution d’énergie.
- Protection contre les surcharges .
- Protecteur de Séquence de Phase.
- Protection Limite de Levage.
- Protection de Limite de déplacement .
- Protection avec les Arrêts d’Urgence.
- Le bruit de toute la machine est inférieur à 60 db.