Ce portique à poutres en treillis est un appareil de levage destiné aux :
- Entrepôts
- Parcs à marchandises
- Terminaux
- Sites de manutention
Il permet de soulever et gérer des objets de grande taille, et, est constitué de pièces en porte-à-faux avec des dimensions sur mesure.
La structure de la poutre principale est en treillis de poids léger avec une faible charge sur les roues.
Vous avez le choix pour un portique à poutre en treillis simple ou double, avec un système de levage à palan monorail ou de type chariot.
-
Caractéristiques Techniques :
- Modèle : WHL
- Marque : Weihua
- Lieu d’origine : Chine
- Certificats : ISO 9001, ISO 14001, OHSAS, 18001 GB/T
- Normes : JB / T5663-2008
- Sur mesure et sans limite de capacité
- Déplacement : entraînement séparé et frein d'entraînement
- Contrôle : par suspension ou en cabine
|
Capacité de levage |
t |
16 |
|
Portée |
m |
12 |
16 |
20 |
24 |
30 |
|
Hauteur de levage |
m |
6.9 |
9 |
Mécanisme
de déplacement |
Vitesse
de déplacement |
contrôle au sol de la poignée |
m/min |
20 |
|
Cabine |
30 40 |
|
Diamètre des roues |
mm |
Ф400 |
Ф500 |
|
Palan électrique |
Vitesse de levage |
m/min |
3.5 0.35/3.5 |
|
Vitesse de déplacement |
m/min |
20 |
|
Niveau de travail: |
|
A5 |
|
voie en acier Recommandé |
|
P38 |
P34 |
|
Source d'énergie |
|
selon vos besoins |
|
Poids de la portique |
Contrôle au sol de la poignée |
t |
14/15.7 |
16.1/17.9 |
20.2/22.1 |
21.2/23 |
27.5 |
|
Cabine |
t |
14.9/17 |
17/19.2 |
21.1/23.4 |
22.11 |
28.3 |
|
Charge de roue maximale |
|
KN |
143/150 |
152/159 |
165/174 |
169/176 |
180/190 |
|
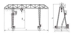
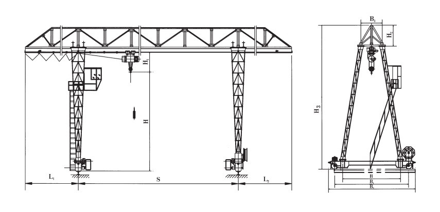
Dimensions de base |
L1 |
mm |
3000 |
4000 |
5000 |
6000 |
|
L2 |
|
H1 |
2300 |
|
H2 |
1700 |
2000 |
2100 |
2200 |
2500 |
|
H3 |
10100/13100 |
10400/13400 |
101400/13400 |
10600/13600 |
10700/13700 |
|
B |
5000/6000 |
6500/7500 |
|
B1 |
6500/7000 |
7500/8500 |
|
B2 |
7000/7500 |
8200/9200 |
|
B3 |
1600 |
1700 |
Options sélectionnables :
- Ce portique peut être conçu avec une poutre en treillis simple ou une poutre en treillis double, de sorte que le mécanisme de levage peut être un palan monorail ou un palan de type chariot.
- Le portique se déplace de deux manières : entraînement séparé et frein d’entraînement.
- Ce portique peut être contrôlé par suspension ou en cabine. La cabine peut être ouverte ou fermée, elle peut être installée du côté gauche ou du côté droit et il existe 3 façons d'entrer dans la cabine, côté, face avant et dessus pour répondre aux besoins des utilisateurs dans diverses circonstances.
- Le portique à double poutre en treillis est composé de 2 poutres en treillis, de pieds en acier sans soudure, d'un mécanisme de déplacement longitudinal, d'une passerelle de sécurité, d'une cabine, d'un chariot de levage, d'une échelle, d'une poutre, d'un siège, d'un crochet et d'un linguet.
Sécurité
- Pièces de Protection de Sécurité Mécanique : il y a des tampons aux deux extrémités de la poutre principale pour assurer le fonctionnement en sécurité du chariot sur la poutre principale.
- Équipé d'une balayeuse de rail, qui peut éliminer les obstacles sur la voie et assurer la sécurité de fonctionnement.
- Il y a aussi une échelle droite lors des opérations au sol. Lorsque la hauteur est supérieure à 5m, un anneau de sécurité d'un diamètre de 600-800mm est installé à partir de 2m.
- Système de Protection Electrique
- Protection de court-circuit.
- Protection Contre les Pertes de Tension.
- Interrupteur d'Arrêt d’Urgence.
- Limiteur de surcharge.
- Limite de Déplacement.
- Position Zéro et Protection de Interverrouillage (uniquement pour le fonctionnement dans la cabine).
- Protection Contre les Pertes de Phase, l’inversion de phase, les Surtensions et Les Sous-Tensions.
- Fil Mise à Terre.