Banderoleusesemi-automatique à bras tournant sur pied ou à fixation murale
Caractéristiques :
En standard, un pupitre de commande avec paramètre ajustable et programmable :
- 99 programmes mémorisables
- Vitesse de rotation du bras
- Vitesse de déplacement du chariot
- Réglage indépendant du nombre des tours en haut et en bas de la palette
- Réglage du recouvrement supérieur de la palette
- 3 types de cycles: cycle montée et descente, cycle montée ou descente seule et cycle avec dépose de coiffe
- Ajustements manuels: rotation bras, montée et descente du chariot, tours bas, tours haut,...
- Verrouillage des commandes.
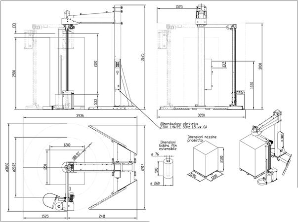
Spécifications :
- Puissance totale installée : 3 kw
- Tension alimentation standard : 230 V monophasé – 50/60 Hz 6A - Protection : IP 54
- Dimension maximum palette : 1200 x 1200 mm - Hauteur maxi palette : 2500 mm
- Bobine de film: Laize de 500mm, mandrin intérieur de 76mm
- Vitesse de rotation du bras: jusqu'à 12 tours/min
- Poids: fixation au mur: 350kg, avec mat: 670kg
Options :
Système de coupe automatique en fin cycle embarqué sur le chariot
Protection CE avec barrières anti-intrusion pour la zone de chargement.
Banderoleuse semi automatique à bras tournant - Vitesse 12 trs/min