Construction : Fabriqué à partir de panneaux sandwich.
Murs et toit : Panneaux sandwich de 100 mm d'épaisseur avec noyau en polystyrène, offrant une perméabilité thermique de 0,38 W/m²K.
Plancher : Panneau sandwich de 100 mm d'épaisseur avec noyau en polystyrène, également avec une perméabilité thermique de 0,38 W/m²K. Composé d'un panneau OSB de 15 mm et d'un revêtement de sol en PVC de 2,2 mm.
Structure : Le conteneur ne possède pas de cadre structurel. Le toit est conçu en rouleau.
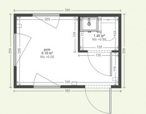
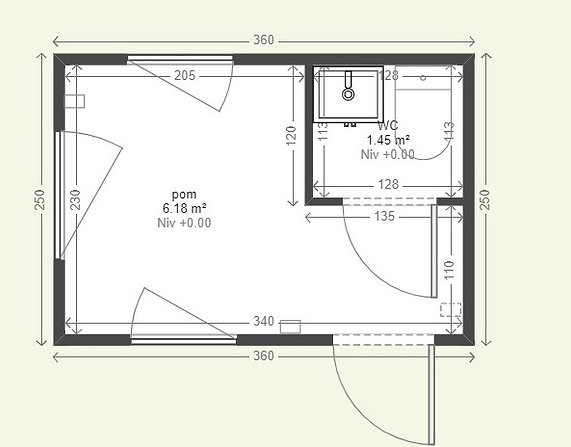
Installation électrique : Comprend des prises 230V (3 unités), des interrupteurs (2 unités) et un éclairage intégré.
Ventilation : 1 grille de ventilation.
Portes : Porte avant isolée de 80 cm (1 unité), porte intérieure en acier de 80 cm (1 unité).