Conteneur habitable 36 m2
Code fiche produit : 47217535
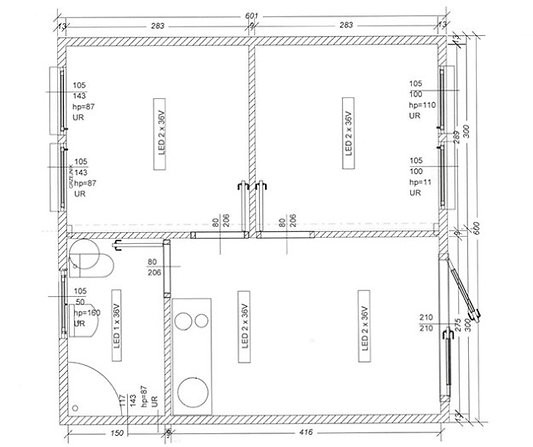
- Conteneur d'Habitation (36 m²)Équipements et AménagementsNombre de Chambres: 3
- Salle de Bains: Oui, équipée d'un lavabo, toilettes, et douche.
- Cuisine: Inclut des équipements électriques, un poêle, et un évier.
- Chauffage: 4 chauffages électriques.
- Éclairage: 5 lampadaires à diodes électroluminescentes.
Voir la description détaillée
Imprimer
Équipements et Aménagements
- Nombre de Chambres: 3
- Salle de Bains: Oui, équipée d'un lavabo, toilettes, et douche.
- Cuisine: Inclut des équipements électriques, un poêle, et un évier.
- Chauffage: 4 chauffages électriques.
- Éclairage: 5 lampadaires à diodes électroluminescentes.
Dimensions
- Dimensions Extérieures:
- Longueur: 6010 mm
- Largeur: 6000 mm
- Hauteur: 2750 mm
- Dimensions Intérieures:
- Longueur: 5750 mm
- Largeur: 5740 mm
- Hauteur: 2500 mm
Construction
- Cadre de Transport: Profils courbes à froid, tôle galvanisée de 0,5 mm.
- Toiture: Feuille lisse galvanisée extérieure de 0,5 mm avec une pente de 2 %, isolée avec de la laine minérale pressée de 100 mm.
- Parois Intérieures: Feuille de trapèze galvanisée T6, laine de façade pressée de 100 mm, finition en bois séché ou panneaux PVC.
- Parois de Cloisons: Construction en bois imprégné, plaque OSB de 12 mm, isolation phonique.
- Sol: Tôle galvanisée de 0,5 mm, laine de façade pressée de 100 mm, plaque OSB de 22 mm, finition en PVC.
- Porte Extérieure: 2100 mm x 2100 mm
- Porte Intérieure: 800 mm x 2060 mm
- Fenêtres:
- 3 fenêtres de 1050 mm x 1430 mm
- 2 fenêtres de 1050 mm x 1000 mm
- 1 fenêtre de 1050 mm x 500 mm
Équipement Standard
- Ventilation: 3 ventilations naturelles, 1 ventilation électrique.
- Obturateurs à Rouleaux: 4 manuels.
- Attique: 4 pages.
- Canopies: Aucun.
- Installation Électrique:
- Ligne électrique avec câbles en canaux en plâtre, prises YDY 3 x 2,5 mm, éclairage JY 3 x 1,5 mm.
- Boîte de Commande: Hermétique ou fiche 16A – 32A CEE sur la paroi extérieure.
- Boîte de Distribution Principale: Avec fusible pour chaque circuit.
- Double Douilles 230V: Individuelles.
- Compteurs: Individuels.
- Chauffage Électrique: Avec fusibles séparés.
- Raccordement à l'Eau: Installation complète en PVC, vidange de plus de 110 mm, alimentation en eau PE32 avec vanne.
-
Conteneur habitable 36 m2
Code fiche produit : 47217535
Autres produits de ce fournisseur
Demande de prix pour Conteneur habitable 36 m2
19/02/2025etude de possibilité pour rentabiliser un investissement
test